Rathaus Eschborn

Realisierungswettbewerb 2020

Durch den künftigen Teilabriss der bestehenden Gebäudestruktur wird das Rathaus Eschborn einen Teil der im Bewusstsein der Bürger fest verankerten Gebäudemerkmale verlieren. Hiermit wird dem Gebäude vorerst ein Stück Identität genommen. Das Ziel des hier gezeigten Entwurfes ist es daher diesen Verlust aufzufangen und dem Bürger ein Rathaus zu errichten, welches im Hinblick auf Erscheinungsbild und Wahrnehmung im Stadtraum die Identifikation mit der Gebäudefunktion stärkt.

Bereits baugeschichtliche Beispiele im 12. Jahrhundert von Rathäusern zeigen charakteristische bauliche Elemente, welche sich über die Jahrhunderte im Bewusstsein der Menschen manifestiert haben. Sie sorgen dafür, dass der Betrachter durch die Außendarstellung des Gebäudes dessen Funktion ableitet.

So findet man bei Betrachtung der Gebäudetypologie unter anderem das Merkmal einer offenen, oftmals von Säulen getragenen Halle im Erdgeschoss. Diese Säulenstruktur entwickelt sich zum Stadtraum hin zu einer Arkade. Der Stadtraum und der so genannte Broletto (vom Lateinischen brolo = eingefriedeter Hof) fließen dadurch ineinander über. Das jeweilige Element kann als räumliche Erweiterung des jeweils anderen verstanden werden. Zudem findet sich häufig ein weiteres Charakteristikum dieses Gebäudetypus in der Ausformulierung eines Turmes, der dem Gebäude im Stadtraum Präsenz verleiht und eine von weitem sichtbare Adresse bildet.

Der hier gezeigte Entwurf bedient sich dieser ausgewählten typologischen Grundelemente, um ein neues identitätsstiftendes und zukunftsfähiges Rathaus auf Basis baugeschichtlicher Architektursprache zu entwickeln.

Lageplan

Grundriss Untergeschoss

Grundriss Erdgeschoss

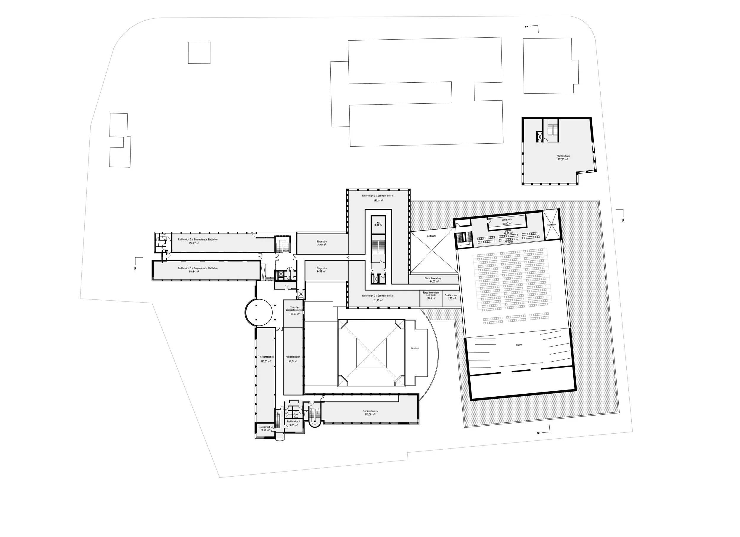
Grundriss 1. Obergeschoss

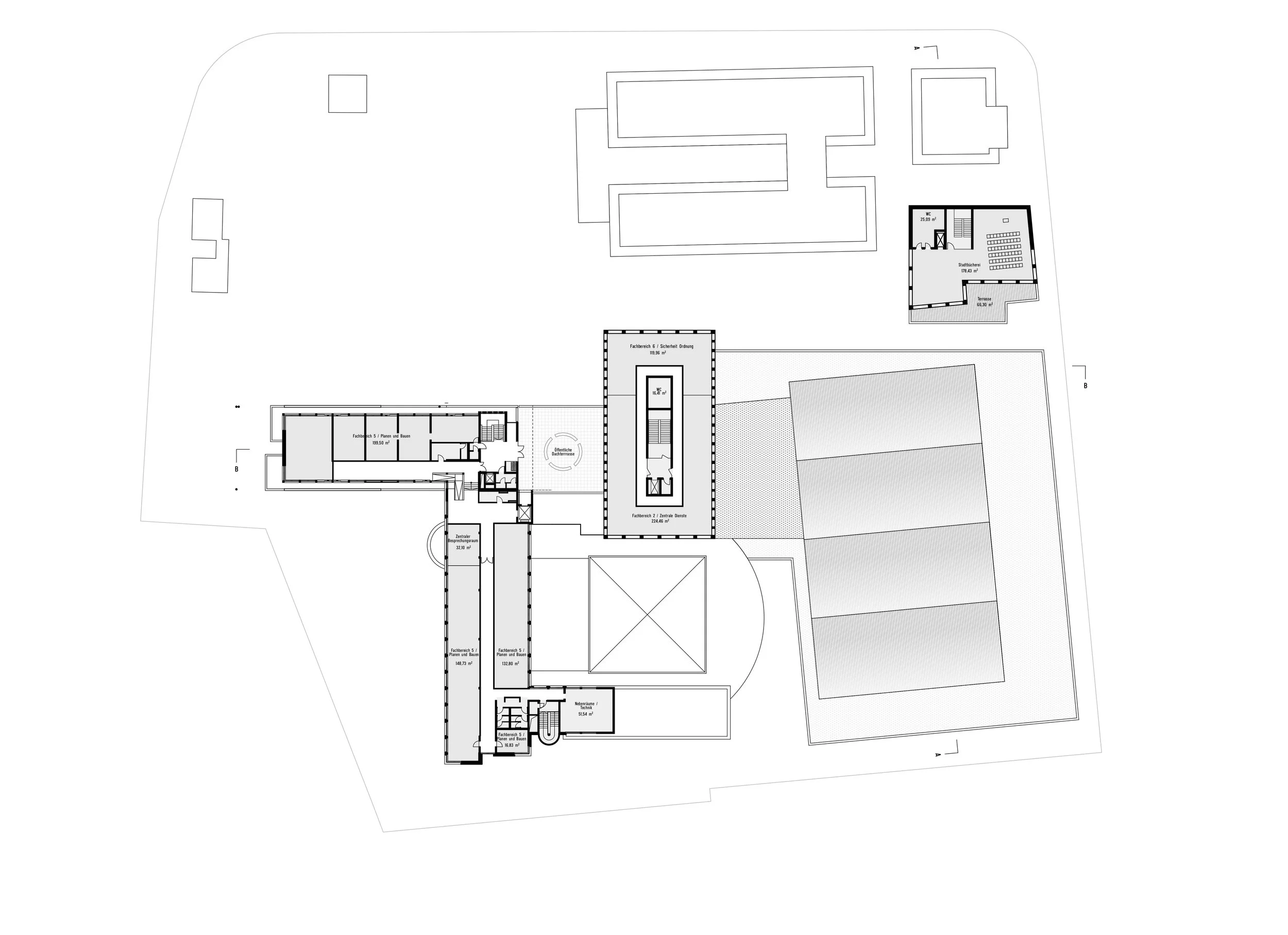
Grundriss 2. Obergeschoss

Grundrisse 3. und 5. Obergeschoss

Schnitte