Kinder garten neckar bischofsheim

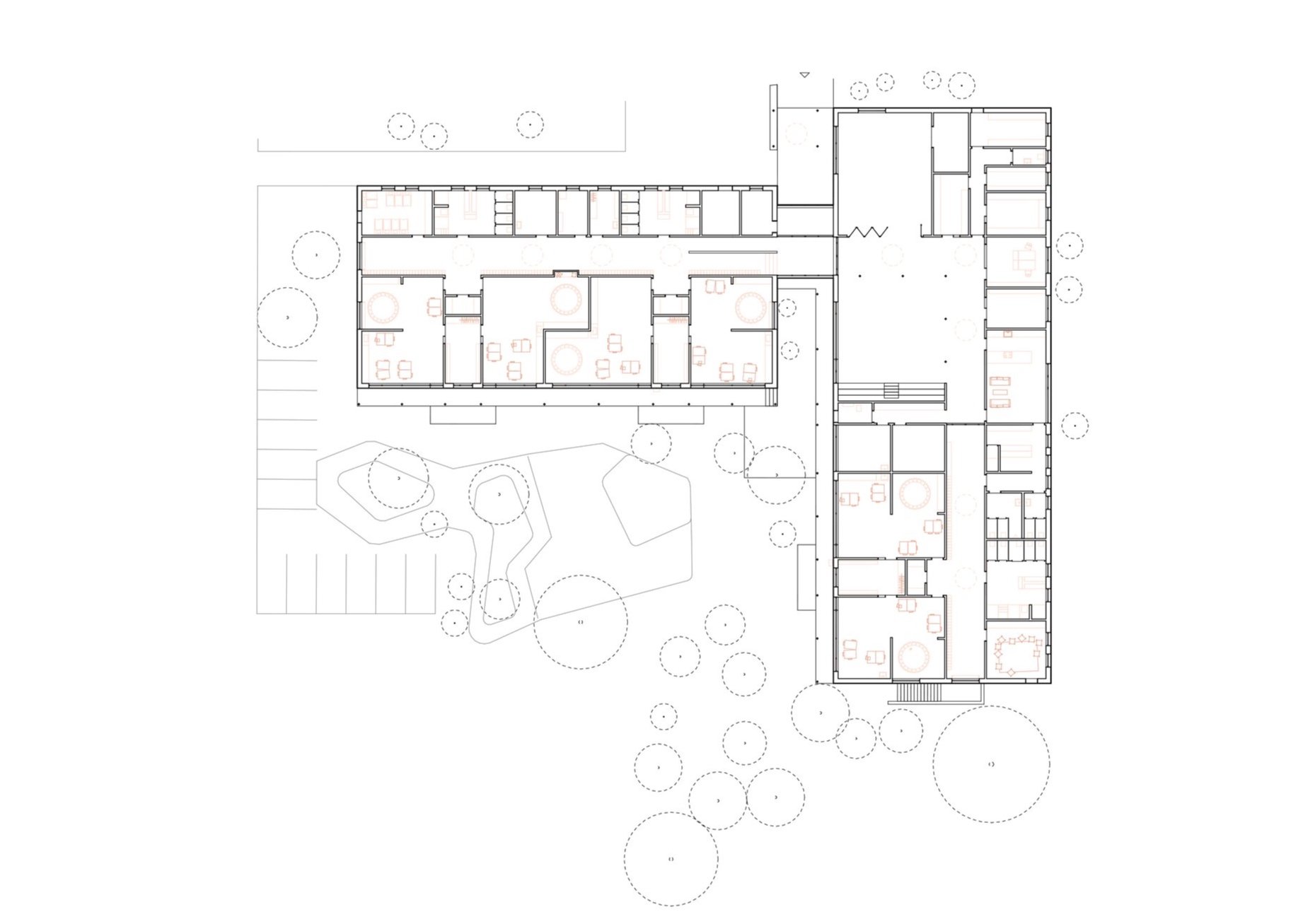
Die Stadt Neckarbischofsheim beabsichtigt, im Rahmen ihrer kommunalrechtlichen Aufgabenerfüllung die Errichtung eines 6 - gruppigen Kindergartens. Vorgesehen ist die Errichtung eines Gebäudes in modularer Bauweise bzw. Bauweise mit hohem Vorfertigungsgrad für 120 Kinder in zwei separaten Gebäudeteilen.

Die Einrichtung soll über einen zukunftsfähigen, adäquaten Standard verfügen, der den beschriebenen Ansprüchen gerecht wird und die Rahmenbedingungen bietet, dass das pädagogische Konzept des Kindergartens umgesetzt werden kann.

Perspektive Straßenseite

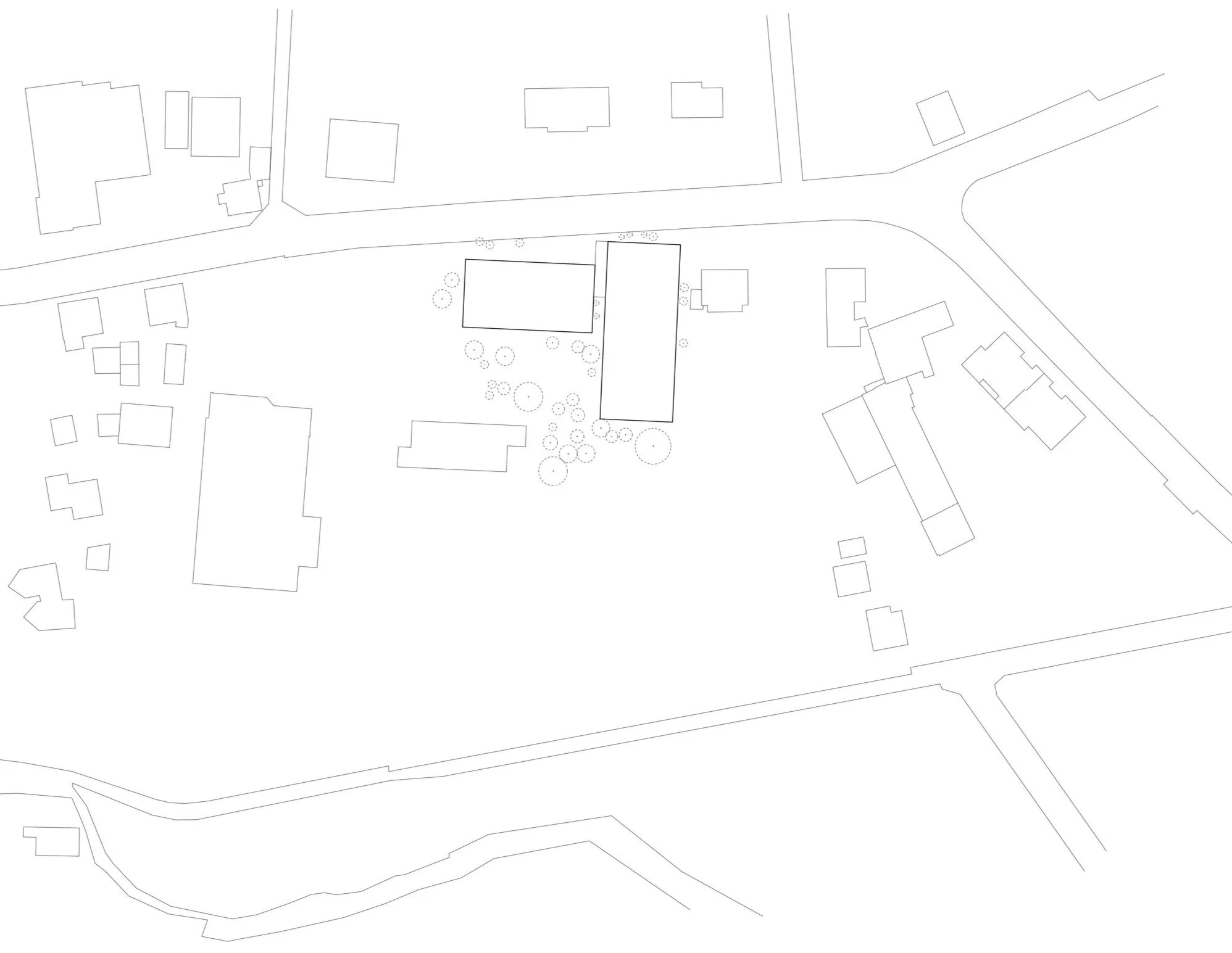
Lageplan

Grundriss Erdgeschoss

Ansicht Süd

Ansicht Nord

Schnitt Ost nach West

Ansicht Ost

Dachaufsicht

Grundriss Untergeschoss

Perspektive Laubengang

Perspektive Flurbereich

Perspektive Bistrobereich

Perspektive Wickeltisch

Perspektive Kindertoiletten